Bouwjaar
2020
Perceel
132 m²
Wonen
119 m²
Inhoud
421,5 m³
Bouwjaar
2020
Perceel
132 m²
Wonen
119 m²
Inhoud
421,5 m³
Royale, uitgebouwde tussenwoning met Energielabel A en moderne keuken en badkamer, 3 ruime slaapkamers en mogelijkheid extra slaapkamer(s) op de 2e verdieping. Fijne tuin met berging en achterom. Gunstig gelegen in kindvriendelijke, jonge woonwijk De Waluwe, op loopafstand van scholen, winkels en het NS station. Ook het historische centrum van Zaltbommel en de oprit A2 zijn snel bereikbaar.
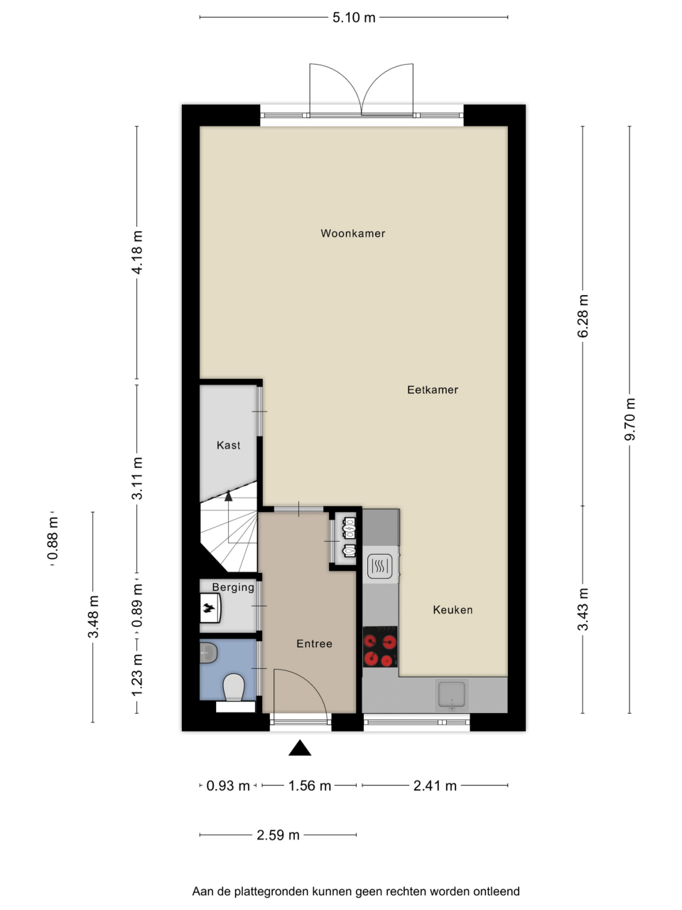
Indeling begane grond:
De entree van de woning is aan de voorzijde bij de onderhoudsvriendelijke voortuin. Vanuit de hal met lichte gietvloer, garderobe, trapopgang, kast met CV ketel, meterkast en moderne toilet met fonteintje, is de woonkamer bereikbaar. Let op de fraaie woonkamerdeur met glas voor meer lichtinval. De woonkamer is voorzien van een trapkast en een lichte gietvloer met vloerverwarming. Aan de achterzijde is de zithoek met zicht op de verzorgde tuin. Via de openslaande deuren is het terras en de tuin met houten berging bereikbaar. Aan de voorzijde ligt de eethoek bij de moderne open keuken. Deze strak vormgegeven keuken in L-vorm heeft een aanrechtblad met spoelbak met beweegbare kraan, elektrische screen aan de voorzijde en is voorzien van div. inbouwapparatuur.
Indeling 1e verdieping:
Via de trap in de hal is de 1e verdieping bereikbaar. Hier liggen aan de overloop 3 ruime slaapkamers en de moderne, complete badkamer. De volledige verdieping is voorzien van een lichte laminaat vloer.
Aan de achterzijde liggen 2 slaapkamers: de ouderslaapkamer en een kinderkamer. Beiden voorzien van elektrische rolluiken. De slaapkamer aan de voorzijde, tevens met elektrisch rolluik, is in gebruik als kastenkamer. Op deze kamer staat tijdelijk de droger, deze kan ook op de zolderverdieping staan. De ruime, volledig betegelde badkamer ook met rolluik, is ingericht met een inloopdouche met regendouche en handdouche. Daarnaast is er een breed wastafelmeubel met grote spiegel en een 2e hangend toilet.
Indeling 2e verdieping:
Via een vaste trap is de 2e verdieping bereikbaar met een grote open zolder met dakraam,de witgoedaansluitingen en de omvormer van de zonnepanelen. Tevens is er een mechanische ventilatie unit (Duco). De vloer is voorzien van fleurige tapijttegels.
Achter de woning ligt een fraaie, groene tuin met sierbestrating, een gazon, borders met beplanting, struiken en een achterom middels ijzeren sierhekwerk met poort. Verder een zonnig terras voor de houten berging en een terras achterin de tuin.
Kortom een fijne en instapklare gezinswoning. Kom je kijken?
Toon volledige omschrijving





