Bouwjaar
1750
Perceel
71 m²
Wonen
95,9 m²
Inhoud
394,39 m³
Bouwjaar
1750
Perceel
71 m²
Wonen
95,9 m²
Inhoud
394,39 m³
In de historische binnenstad van Zaltbommel, vlakbij de Sint Maartenskerk, ligt deze gerenoveerde stadswoning. Fraai gelegen vlakbij winkels, restaurants, theater De Poorterij, het stadspark en de Waal met uiterwaarden. Met voldoende parkeergelegenheid voor de woning en aan de Waal. Ook het station en de aansluiting op de A2 zijn snel bereikbaar.
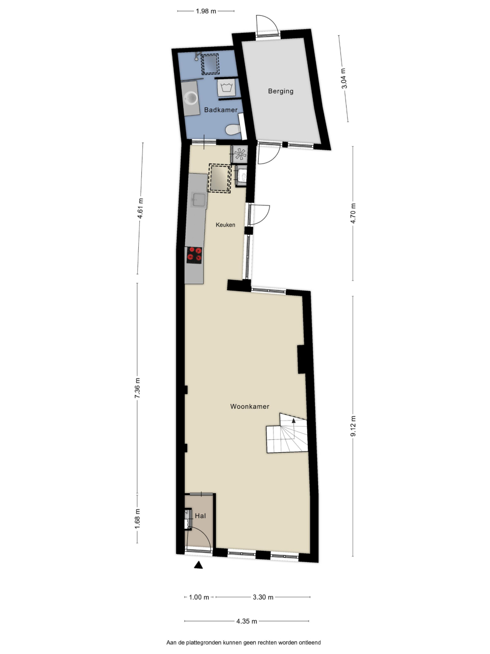
Indeling begane grond:
De entree is aan de voorzijde van de woning.
De woning ligt aan een straat met karakteristieke stadspanden met beschermd stadgezicht. Vlakbij de winkels, de Markt maar ook de rivier de Waal met uiterwaarden. Via de hal met garderobe en meterkast is de ruime woonkamer bereikbaar.
De lichte woonkamer met PVC vloer heeft aan de voorzijde de zithoek met grote ramen met roedeverdeling. Aan de achterzijde is de eethoek bij de nieuwe keuken. Er is tevens een groot raam met roedeverdeling die uitkijkt op de patio.
Via de open houten trap is de 1e verdieping bereikbaar.
Achter de woonkamer ligt de lichte, nieuwe (2022) keuken met een recht aanrechtblad met gootsteen met zichtbaar front en fraaie keukenkraan. Recentelijk is een doorbraak gemaakt van de woonkamer naar de keuken. Verder is deze voorzien van een PVC vloer en diverse keukenkastjes en (inbouw)apparatuur. Er is een deur naar de tuin en aan de achterzijde een lichtkoepel en deur naar de badkamer. De nieuwe keuken is voorzien van de volgende inbouw-apparatuur: een inductiekookplaat met 4 zones en ingebouwde afzuigkap, een vaatwasser, een oven en een koelvries-combinatie. In een keukenkast naast de buitendeur bevindt zich de Nefit CV HR combiketel. De nieuwe (2022) complete badkamer (tevens met lichtkoepel) is voorzien van een royale inloopdouche met regendouche en handdouche, wastafelmeubel met fraaie waskom en mengkraan, hangend toilet en designradiator. Er is tevens ruimte voor de wasmachine en een droger.
Indeling 1e verdieping:
Op de 1e verdieping is recentelijk een nieuwe indeling gemaakt met 3 slaapkamers, 2 aan de achterzijde en 1 grote aan de voorzijde. De ouderslaapkamer aan de voorzijde is voorzien van een balkenplafond, laminaatvloer en dakkapel. De slaapkamers aan de achterzijde zijn ook voorzien van een laminaatvloer. Beide met grote ramen en 1 met een loopdeur naar het platte dak.
Op het platte dak boven de achterste slaapkamers en op het platte dak boven de badkamer en schuur liggen in totaal 8 zonnepanelen.
Indeling 2e verdieping:
Op de overloop is een luik met vlizotrap naar de zolderverdieping met veel extra bergruimte.
De zonnige patio achter de woning op het Zuidoosten is onderhoudsvriendelijk en bereikbaar via de keuken deur. De berging met loopdeur en raam is bijzonder praktisch als bergruimte voor o.a de fietsen. De achterdeur van de berging is de achterom naar de karakteristieke Sophiastraat.
Een heerlijke, instapklare stadswoning, gelegen in een rustige straat midden in het historische centrum van Zaltbommel met rivier de Waal om de hoek. Kom je kijken?
Toon volledige omschrijving





