Bouwjaar
1910
Perceel
76 m²
Inhoud
276 m³
Bouwjaar
1910
Perceel
76 m²
Inhoud
276 m³
Let op! Het betreft een bieden vanafprijs.
Deze sfeervolle stadswoning ligt aan de rand van het historische centrum van Zaltbommel, in een rustige straat met de Waal en de stadswallen om de hoek en de Hema op drie minuten loopafstand. Achter de woning ligt een ommuurde stadstuin met berging.
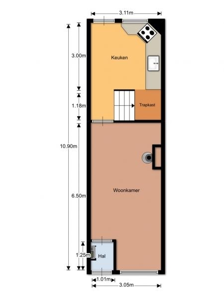
Indeling begane grond:
De entree van de woning is aan de voorzijde. De voorgevel van het pand is, zoals bijna de gehele binnenstad van Zaltbommel, beschermd stadsgezicht.
De voordeur geeft toegang tot de hal met fraaie plavuizen.
In de hal is verder de meterkast, garderobe en de paneeldeur met glas in lood naar de woonkamer.
De rechthoekige woonkamer is voorzien van een balken plafond en de originele houten vloer die door de verkoper in ere is hersteld. Aan de voorzijde is een groot raam met roede verdeling en een brede vensterbank waar je op kunt zitten. Aan de achterzijde is een sfeervolle schouw met gaskachel en de deur naar de woonkeuken.
De keuken met ruimte voor een tafel is voorzien van diverse inbouwapparatuur en antieke plavuizen. Er is opbergruimte onder de trap. Aan de achterzijde is een groot raam met roedeverdeling en de deur naar de ommuurde stadstuin.
Indeling 1e verdieping:
Via een vaste trap tussen de woonkamer en keuken is de overloop op de 1e verdieping bereikbaar. Ook deze is voorzien van een houten vloer. Aan de voorzijde is een slaapkamer en aan de achterzijde de 2e slaapkamer. Tussenbeiden ligt de badkamer.
De slaapkamer aan de voorzijde is voorzien van een raam met roede verdeling en ook hier is de originele houten vloer in ere hersteld. Vanuit deze slaapkamer is er mooi zicht op de Heilige Geeststraat.
De volledig betegelde badkamer is in ca. 2004 aangelegd en voorzien van een geblokte tegelvloer, charmante wastafel, inloopdouche, hangend toilet en een design radiator.
Aan de achterzijde ligt de 2e slaapkamer, op dit moment in gebruik als kinderkamer. De kamer is ook voorzien van de originele houten vloer, een brede inbouwkast en een groot raam met roedeverdeling.
Indeling 2e verdieping:
Via een vaste trap is de zolderverdieping bereikbaar. Deze ruimte met hoog plafond en bergvliering is in gebruik als ouderslaapkamer. De kamer is voorzien van een wit geschilderde houten vloer. Er zijn tevens bergkasten met aan de voorzijde de witgoedapparatuur en aan de achterzijde de CV HR ketel.
Op het platte dak van de 1e verdieping zijn houten vlonderplanken aangebracht. Vanuit het dakraam en vanaf het platte dak is er prachtig zicht op de rivier de Waal.
Achter de woning ligt een onderhoudsvriendelijke, ommuurde tuin met sierbestrating en achterin een praktische berging.
De woning ligt op een bijzonder gunstige plek aan de rand van in het historische centrum van Zaltbommel. In een rustige straat met de Waal en de stadswallen vlakbij.
Kortom een heerlijke stadswoning, komt u kijken?






