Bouwjaar
1800
Perceel
316 m²
Wonen
300 m²
Inhoud
1156 m³
Bouwjaar
1800
Perceel
316 m²
Wonen
300 m²
Inhoud
1156 m³
Aan één van de oudste straten van Zaltbommel, vlakbij de St. Maartenskerk en de singel ligt dit karakteristieke rijksmonument. De gepleisterde voorgevel is uit de 18e of 19e eeuw en mogelijk stamt de kern van dit huis zelfs uit de late middeleeuwen. De woning met diepe tuin op het zuiden ligt aan de rand van het historische centrum van Zaltbommel vlakbij winkels, restaurants, stadspark en theater De Poorterij. Ook het station en de A2 zijn binnen enkele minuten bereikbaar.
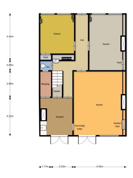
Indeling begane grond en kelder:
De statige entree van de woning ligt in het midden van de voorgevel aan de voorzijde. De prachtige authentieke voordeur met dubbel raam is voorzien van een gietijzeren deurrooster. De deur biedt toegang tot de gang met originele marmeren vloertegels. Vanuit de gang met garderobe, trapopgang, origineel fonteintje en toilet met fonteintje zijn 3 ruime kamers, de keuken en aansluitend de kelder te bereiken.
Aan de voorzijde liggen twee ruime kamers met paneeldeuren, hoge plafonds en gescheiden door de lange gang. Aan de voorzijde zijn in beide kamers grote "vensters met zesruitsschuiframen"; aldus de Rijksdienst voor cultureel erfgoed. Deze grote ramen zorgen voor een mooie lichtinval.
Aan de achterzijde ligt een royale kamer die met een hoogte van 4.3 m, een grote raampartij en openslaande deuren bijzonder is te noemen. Tevens is er een authentieke schouw.
Aan de achterzijde ligt tevens de keuken met openslaande deuren en met een deur naar een bergkast en een deur naar de authentieke boogkelder. Deze oude boogkelder met plavuizen op de vloer is toegankelijk via een trap en gang en meet 19,5 m2; waarbij het hoogste punt in de kelder 1,79 m. is. Aan de buitengevel is een venster met rooster.
De begane grond en 1e verdieping zijn op dit moment in gebruik als kantoorruimte.
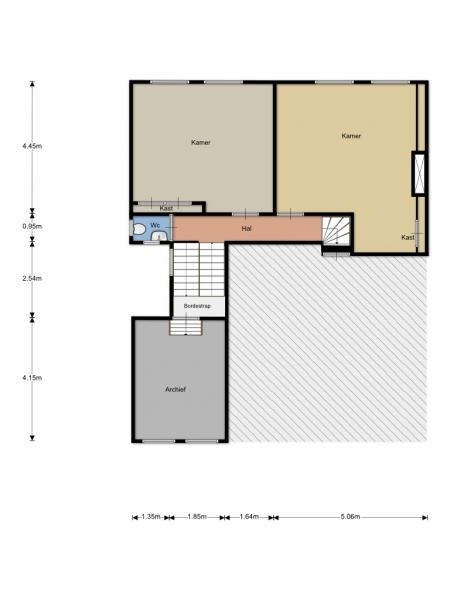
Indeling 1e verdieping:
Via een prachtige bordestrap is de tussenkamer (nu in gebruik als archiefruimte) en vervolgens de 1e verdieping bereikbaar. Aan de voorzijde liggen 2 grote kamers met inbouwkasten en tevens met identieke "vensters met zesruitsschuiframen". Aan de overloop is een modern toilet met fonteintje en een authentiek zijraam.
De tweede kamer op de 1e verdieping is voorzien van een inbouwkast en mooie schouw.
Indeling 2e verdieping en zolder:
Via een vaste trap is de 2e verdieping bereikbaar met een overloop met garderobe trapopgang en toegang tot 2 slaapkamers en een woonkamer met aansluitend de 2e keuken.
De woonkamer op de 2e verdieping (22 m2;) is voorzien van een originele schouw, inbouwkasten, 2 grote openslaande ramen met roedeverdeling en een deur naar de 2e (eenvoudige) keuken. In de keuken met tevens een groot raam is een keukenblok met spoelbak, losse keukenapparatuur en een inbouwkast.
De nieuwe badkamer ( 2016) is voorzien van een dakraam, douchecabine, wastafel en 3e (hangend) toilet.
Aan de voorzijde liggen de huidige ouderslaapkamer en een (studeer) kamer met de Nefit CV HR ketel en toegang tot de zolderverdieping.
Aan de overloop ligt ook nog een tussenkamer , die op dit moment in gebruik is als logeerkamer.
De studeerkamer geeft via een trapje toegang tot de grote zolder met geisoleerde kap, houten balken, vele hoekjes en veel bergruimte.
Achter de woning ligt een diepe tuin op het zuiden met een achterom. Met een terras direct achter de woning en verder een gazon, diverse borders, hagen, struiken en achterin de tuin een houten berging.
Bijzonderheden:
- de woning is een Rijksmonument
- beschermd stadsgezicht
- gepleisterde voorgevel met zware cordonlijst
- voorzijde 8 identieke vensters met 6 ruitsschuiframen
- oude boogkelder en gang toegankelijk via de keuken
- authentiek fonteintje in de hal met marmeren vloertegels
- bordestrap naar de 1e verdieping
- diverse schouwen en originele details in de woning
- de woning is op dit moment gedeeltelijk in gebruik als kantoorruimte
Komt u kijken? U bent van harte welkom!






