Bouwjaar
1992
Perceel
240 m²
Wonen
120,4 m²
Inhoud
502,6 m³
Bouwjaar
1992
Perceel
240 m²
Wonen
120,4 m²
Inhoud
502,6 m³
Aan de rand van Zaltbommel vlakbij de Waal ligt deze goed onderhouden tweekapper met garage met nieuwe garagedeuren en eigen oprit. Energiezuinig met Energielabel A en 12 zonnepanelen. Verder een moderne keuken en lichte woonkamer met grote ramen aan de voor- en achterzijde. 1e verd. : 3 slaapkamers, badkamer met inloopdouche met thermostaatkraan, wastafel en 2e toilet. 4e slaapkamer op de 2e verd. Gelegen vlakbij scholen, kinderopvang, speeltuin, kinderboerderij ,winkels aan de Schans en natuurgebied De Kloosterwiel. Tevens dichtbij de historische binnenstad.
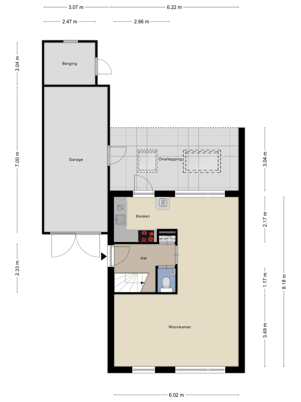
Indeling begane grond:
De entree van de woning is aan de voorzijde naast de oprit naar de garage met nieuwe dubbele deuren. Vanuit de hal met garderobe, trapopgang, meterkast en (hangend) toilet met fonteintje zijn de woonkamer en keuken bereikbaar. De woonkamer is voorzien van een lichte laminaatvloer en grote ramen die zorgen voor veel lichtinval. Prettig daarbij is het grote zonnescherm aan de voorgevel. Aan de voorzijde is de zithoek en aan de achterzijde de eethoek bij de open keuken. Deze lichte open keuken is voorzien van een granieten aanrechtblad met spoelbak en diverse inbouwapparatuur zoals een Siemens 4 pits inductie kookplaat met Siemens afzuigschouw, Siemens combi magnetron, Siemens koelkast en Bosch vaatwasser. Via de achterdeur en overkapping is de garage bereikbaar.
Indeling 1e verdieping:
Via de hal is de 1e verdieping bereikbaar. Hier liggen aan de overloop 3 ruime slaapkamers met een laminaatvloer of vinylvloer. De ramen zijn voorzien van rolluiken. Aan de voorzijde liggen 2 slaapkamers en aan de achterzijde, de 3e slaapkamer (met hor) en de badkamer. De 2e en 3e slaapkamer zijn op dit moment ingericht als studeerkamer of werkkamer. De volledig betegelde lichte badkamer is ingericht met een wastafel, designradiator, 2e toilet en inloop douche met thermostaatkraan.
Indeling 2e verdieping:
Op de 2e verdieping is de ruime 4e slaapkamer met groot Veluxraam (met hor) en extra opbergruimte. Verder de voorzolder met dak- en zijraam, witgoedaansluiting, inbouwkast, Nefit Topline compact CV HR combiketel(2008). MV unit en omvormer van de 12 zonnepanelen (2020).
Achter de woning ligt een fijne en diepe tuin. De tuin is voorzien van een groot terras direct achter de woning met een fraaie overkapping over de gehele breedte. Er is tevens een terras achterin de tuin. Er is daardoor altijd wel een zonnig plekje te vinden. Verder sierbestrating, een vijver, diverse borders met beplanting en struiken. De garage naast de woning met loopdeur is via de achterdeur en overkapping altijd droog bereikbaar en is aan de voorzijde voorzien van een nieuwe dubbele deur. Achter de garage is een aangebouwde houten berging.
Een ruim en heerlijk gezinshuis. Kom je kijken?
Toon volledige omschrijving





