Bouwjaar
1987
Perceel
126 m²
Wonen
120 m²
Inhoud
342 m³
Bouwjaar
1987
Perceel
126 m²
Wonen
120 m²
Inhoud
342 m³
Aan een rustig pleintje in de woonwijk De Spellewaard, ligt deze fijne middenwoning met tuin op het Zuiden en diverse parkeerplekken voor de deur. In de buurt van winkels, scholen, speeltuin, kinderboerderij, recreatieplas “De Tijningen Plas” en de binnenstad van Zaltbommel.
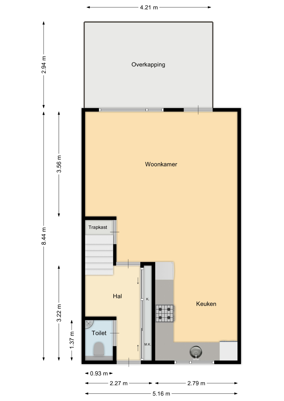
Indeling begane grond:
De entree van de woning is aan de voorkant. Vanuit de hal met garderobe, trapopgang, kastenwand met meterkast en modern toilet met fonteintje is de woonkamer bereikbaar.
De lichte L-vormige woonkamer is voorzien van een mooie deur naar de hal met roedeverdeling en facetgeslepen glas. Verder een praktische trapkast en een lichte tegelvloer met comfortabele vloerverwarming. Aan de achterzijde is de zithoek met een sfeervolle gashaard en zicht op de tuin en veranda. Via een tuindeur zijn de veranda, terras, berging en tuin bereikbaar.
Aan de voorzijde ligt de eethoek bij de open keuken.
De lichte keuken in hoekopstelling is voorzien van een aanrechtblad met ronde spoelbak en diverse inbouwapparatuur: zoals een 4-pits gastoestel en afzuigschouw, hete lucht oven, vaatwasser en koelvriescombinatie.
Indeling 1e verdieping:
Op de 1e verdieping liggen 3 slaapkamers en de badkamer. Aan de voorzijde bevind zich de ouderslaapkamer en de badkamer. Aan de achterzijde twee slaapkamers beide nu in gebruik als studeer- of werkkamer. De slaapkamers zijn voorzien van een lichte laminaatvloer. Via een vaste trap is de 2e verdieping bereikbaar. De volledig betegelde badkamer is ingericht met een douchecabine met thermostaatkraan. Daarnaast is er een breed wastafelmeubel, een designradiator en een 2e (hangend) toilet.
Indeling 2e verdieping:
Op de 2e verdieping bevindt zich de ruime 4e slaapkamer met aan de achterzijde een dakkapel met rolluik. Deze dakkapel zorgt voor extra ruimte en licht. Verder is er een Velux dakraam, laminaatvloer en bergkasten achter de knieschotten.
De voorzolder, tevens met dakkapel is ingericht met de spiksplinternieuwe Intergas CV HR ketel (juni 2022), de witgoedaansluitingen en een extra bergvliering.
Achter de woning ligt een heerlijk zonnige tuin op het Zuiden met een veranda voor vele uurtjes buitenplezier. De stenen (aangebouwde) berging is bijzonder praktisch voor fietsen en tuinspullen. Achter de berging is een extra overkapping. Verder zijn er sierbestrating, borders met bomen en struiken en een achterom.
Een heerlijk gezinshuis! Komt u kijken? U bent van harte welkom!
Toon volledige omschrijving






